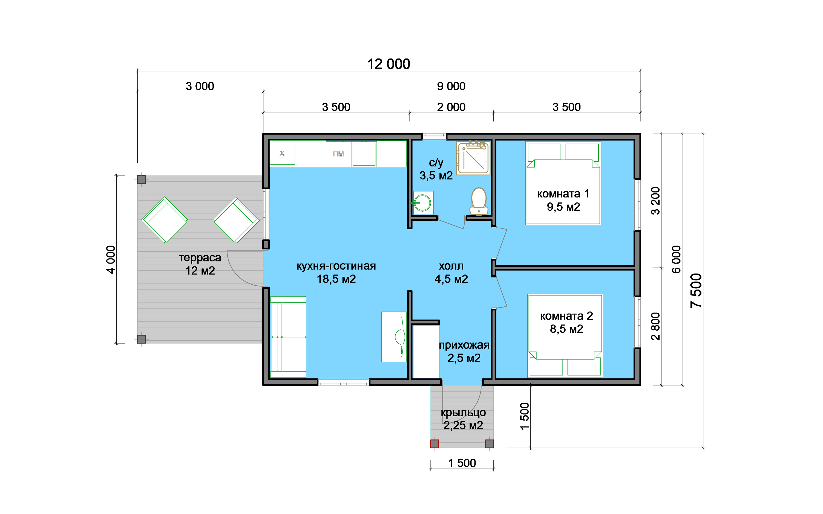
Общая площадь: 70 м²
Размер: 12 х 7,5 м
Спальни: 2
Санузел: 1
Цена: от 2 925 000 руб.
ИНГРИД - в скандинавском стиле, 70 м²
ИНГРИД - в скандинавском стиле, 70 м²
Построенный ИНГРИД в разных комплектациях
Построенный ИНГРИД
в разных комплектациях
в разных комплектациях
Мы разработали для вас оптимальную комплектацию
«Тёплый контур», которая включает в себя:
«Тёплый контур», которая включает в себя:
| Надежное основание | Строганный брус камерной сушки 140х140 мм + гидроизоляция Технониколь. |
| Прочный силовой каркас | Строганная доска камерной сушки 45х90 мм, 45х140 мм, 45х190 мм (из хвойных пород). |
| Сборка без компромиссов | Пневмоинструмент + ершённые гвозди + спецкрепёж. |
| Герметичный пароизоляционный контур | Пароизоляция и закладные из первичного полиэтилена 200 мкм с проклейкой соединений специальным скотчем. |
| Надёжная крыша | Металлочерепица Grandline Classic, толщина 0,45 мм, покрытие PE, комплект с доборными элементами и защитой от насекомых. Подкровельная мембрана + контробрешетка 40х50 мм + обрешетка 25х100 мм. |
| Долговечная внешняя обшивка | Имитация бруса / планкен (без окраски) камерной сушки 20 мм (из хвойных пород). Монтаж через вентиляционный зазор + ветрозащитная мембрана. |
| Прочные балки и опоры | Клееный брус (без окраски) камерной сушки (из хвойных пород). |
| Утепление и шумоизоляция | Плиты, теплопроводностью λd 0,037. Пол - 150 мм, стены - 150 мм, потолок - 150 мм, перегородки - 100 мм. Пароизоляционная пленка 200 мкм – внешний контур и влажные помещения. Ветрозащитная мембрана – перегородки. По внешнему контуру стен и потолка выполняется вентиляционный зазор 20 мм. |
| Чистовое покрытие пола | ОСП-3 / Фанера. |
| Современные окна и двери ПВХ | Профиль VEKA белого цвета, 2-х камерный стеклопакет (3 стекла), фурнитура, антимоскитные сетки и металлические отливы в комплекте. |
| Дверь входная | Металлическая, утепленная с терморазрывом. Внешняя отделка металл, внутренняя МДФ. |
Мы разработали для вас оптимальную комплектацию
«Тёплый контур»,
которая включает в себя:
«Тёплый контур»,
которая включает в себя:
| Надежное основание | Строганный брус камерной сушки 140х140 мм + гидроизоляция Технониколь. |
| Прочный силовой каркас | Строганная доска камерной сушки 45х90 мм, 45х140 мм, 45х190 мм (из хвойных пород). |
| Сборка без компромиссов | Пневмоинструмент + ершённые гвозди + спецкрепёж. |
| Герметичный пароизоляционный контур | Пароизоляция и закладные из первичного полиэтилена 200 мкм с проклейкой соединений специальным скотчем. |
| Надёжная крыша | Металлочерепица Grandline Classic, толщина 0,45 мм, покрытие PE, комплект с доборными элементами и защитой от насекомых. Подкровельная мембрана + контробрешетка 40х50 мм + обрешетка 25х100 мм. |
| Долговечная внешняя обшивка | Имитация бруса / планкен (без окраски) камерной сушки 20 мм (из хвойных пород). Монтаж через вентиляционный зазор + ветрозащитная мембрана. |
| Прочные балки и опоры | Клееный брус (без окраски) камерной сушки (из хвойных пород). |
| Утепление и шумоизоляция | Плиты, теплопроводностью λd 0,037. Пол - 150 мм, стены - 150 мм, потолок - 150 мм, перегородки - 100 мм. Пароизоляционная пленка 200 мкм – внешний контур и влажные помещения. Ветрозащитная мембрана – перегородки. По внешнему контуру стен и потолка выполняется вентиляционный зазор 20 мм. |
| Чистовое покрытие пола | ОСП-3 / Фанера. |
| Современные окна и двери ПВХ | Профиль VEKA белого цвета, 2-х камерный стеклопакет (3 стекла), фурнитура, антимоскитные сетки и металлические отливы в комплекте. |
| Дверь входная | Металлическая, утепленная с терморазрывом. Внешняя отделка металл, внутренняя МДФ. |
Почему мы предлагаем комплектацию «Тёплый контур», а не сразу
«под ключ»? Потому что это даёт вам максимум свободы и удобства:
«под ключ»? Потому что это даёт вам максимум свободы и удобства:
Выбор только нужных опций — вы платите только за то, что действительно важно для вас.
Скрытый монтаж инженерных коммуникаций — все системы будут спрятаны в стенах, прежде чем начнётся отделка.
Свобода в дизайне интерьера — выбирайте любые материалы, межкомнатные двери и создавайте уникальный стиль.
Возможность сделать отделку самостоятельно — если хотите контролировать процесс или сэкономить на работах.
Но если вам важен комфорт и скорость, мы готовы построить дом «под ключ»
— без хлопот и забот. Вам остаётся только заехать и наслаждаться!
— без хлопот и забот. Вам остаётся только заехать и наслаждаться!
Почему мы предлагаем комплектацию «Тёплый контур», а не сразу «под ключ»? Потому что это даёт вам максимум свободы и удобства:
Выбор только нужных опций
— вы платите только за то, что действительно важно для вас.
— вы платите только за то, что действительно важно для вас.
Скрытый монтаж инженерных коммуникаций — все системы
будут спрятаны в стенах,
прежде чем начнётся отделка.
будут спрятаны в стенах,
прежде чем начнётся отделка.
Свобода в дизайне интерьера — выбирайте любые материалы, межкомнатные двери и создавайте уникальный стиль.
Возможность сделать отделку самостоятельно — если хотите контролировать процесс или сэкономить на работах.
Но если вам важен комфорт и скорость, мы готовы построить дом «под ключ» — без хлопот
и забот. Вам остаётся только заехать и наслаждаться!
и забот. Вам остаётся только заехать и наслаждаться!
Наше гарантированное преимущество - комфортная стройка без хлопот
Мы сами организуем всё необходимое – вам остается только ждать готовый дом!
Работа без задержек - устанавливаем бытовку для проживания бригады, чтобы строители всегда были на месте.
Комфорт на стройке без вашего участия - туалетная кабина и питьевая вода уже включены, вам не нужно об этом думать.
Доставка за наш счет! Никаких скрытых затрат и неожиданных расходов.
Материалы под защитой - используем укрывные и подкладочные средства, чтобы избежать повреждений.
Гарантируем качество! Мы следим за каждым этапом строительства, чтобы избежать ошибок и переделок.
Наше гарантированное преимущество - комфортная стройка без хлопот
Мы сами организуем всё необходимое – вам остается
только ждать готовый дом!
только ждать готовый дом!
Работа без задержек - устанавливаем бытовку для проживания бригады, чтобы строители всегда были на месте.
Комфорт на стройке без вашего участия - туалетная кабина и питьевая вода уже включены,
вам не нужно об этом думать.
вам не нужно об этом думать.
Доставка за наш счет!
Никаких скрытых затрат
и неожиданных расходов.
Никаких скрытых затрат
и неожиданных расходов.
Материалы под защитой - используем укрывные и подкладочные средства,
чтобы избежать повреждений.
чтобы избежать повреждений.
Гарантируем качество! Мы следим за каждым этапом строительства, чтобы избежать ошибок и переделок.
Дополнительные опции к комплектации «Тёплый контур»
| Фундамент | Железобетонные забивные сваи 150х150х3000 мм | 155 000 руб. |
| Водосточная система | Пластиковая, Docke Premium | 124 000 руб. |
| Снегозадержатели на кровлю | Металлические, трубчатые | 82 000 руб. |
| Дополнительное утепление стен | Перекрёстный каркас + 50 мм утепления | 99 000 руб. |
| Дополнительное утепление пола | Перекрёстный каркас + 50 мм утепления | 47 000 руб. |
| Дополнительное утепление потолка | + 50 мм утепления | 40 000 руб. |
| Естественная вентиляция помещений | Одна точка, с выходом грибка на крышу | 35 000 руб. |
| Защита пола и вентиляционного зазора фасада от грызунов | Металлическая оцинкованная сетка, ячейка 6х6 мм | 37 000 руб. |
| Внутренняя обшивка стен, перегородок, потолка, пола | Имитация бруса / вагонка / гипсокартон / ламинат / прочее Стоимость рассчитывается индивидуально в зависимости от выбранных материалов и параметров | Цена по запросу |
| Замена внешней обшивки | Стоимость рассчитывается индивидуально в зависимости от выбранных материалов и параметров | Цена по запросу |
| Инженерные коммуникации | Электрика / водоснабжение / канализация / отопление Стоимость рассчитывается индивидуально в зависимости от выбранных материалов и параметров | Цена по запросу |
Дополнительные
опции к комплектации
«Тёплый контур»
опции к комплектации
«Тёплый контур»
| Фундамент |
| Железобетонные забивные сваи 150х150х3000 мм | 155 000 руб. |
| Водосточная система |
| Пластиковая, Docke Premium | 124 000 руб. |
| Снегозадержатели на кровлю |
| Металлические, трубчатые | 82 000 руб. |
| Дополнительное утепление стен |
| Перекрёстный каркас + 50 мм утепления | 99 000 руб. |
| Дополнительное утепление пола |
| Перекрёстный каркас + 50 мм утепления | 47 000 руб. |
| Дополнительное утепление потолка |
| + 50 мм утепления | 40 000 руб. |
| Естественная вентиляция помещений |
| Одна точка, с выходом грибка на крышу | 35 000 руб. |
| Защита пола и вентиляционного зазора фасада от грызунов |
| Металлическая оцинкованная сетка, ячейка 6х6 мм | 37 000 руб. |
| Внутренняя обшивка стен, перегородок, потолка, пола |
| Имитация бруса / вагонка / гипсокартон / ламинат / прочее | Цена по запросу |
| Замена внешней обшивки |
| Стоимость рассчитывается индивидуально | Цена по запросу |
| Инженерные коммуникации |
| Электрика / водоснабжение / канализация / отопление | Цена по запросу |
Видео отзывы наших заказчиков
Видео отзывы наших заказчиков
Понравился проект дома? Узнайте его актуальную стоимость
Понравился проект дома?
Узнайте его актуальную стоимость
Узнайте его актуальную стоимость
Оставьте заявку в форме ниже или позвоните по телефону 8 (495) 187-77-87
Не можете определиться
с проектом дома?